Espace dédié aux arts sonores et aux musiques contemporaines
Mons - Belgique
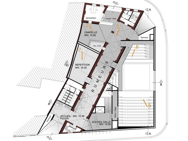
Espace arts sonores Mons
Date: Wettbewerb in 2009 gewonnen
Architekten: Holoffe-Vermeersch und Laurent Niget
Planungsbüro für Theater und Bühnen: Architecture & Technique
Bauherr:Stadt Mons (Belgien)
Budget: 3,9 M€
Beschreibung: Sanierung von einem Feuerwehrhaus auf einer musikhalle für "sonore Kunst" und "zeitgenössige Musik".
Eigenbeteiligung: Beratung, Mitwirken an dem Entwurf besonders für der Bühnenraüme, planung der Bühne, Szenentechnologie, maschinenbau.
Sitze: 300