Stadthalle
Saint Pierre les Elbeuf - Frankreich
Salle polyvalente St Pierre les Elbeuf
Das Projekt:
Bau einer Stadthalle.

Auftraggeber:
St Pierre les Elbeuf Stadt

Architekt Bauleiter:
Agence Sahuc & Katchoura , Paris.

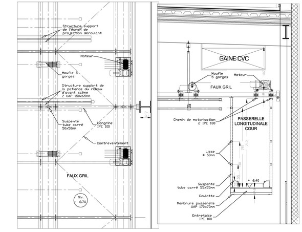
Scénographe d'équipement: Architecture & Technique

Aufgabe: Lph 5 und Lph 6, Erstellung der Ausführungspläne und Leitungsbeschreibung bei Architecture & Technique.

Datum:
Projekt in vorbereitung